

無論何時何處
那些埋藏于深處的真切向往
都能在日常生活中找到堅實的佐證
當自然與空間對話
那些深藏于自然中的空間美學
在彼此的交織中相互綻放

河北邯鄲,璀璨的歷史文化、絢麗的民俗風情交相輝映,造就了邯鄲美麗怡人的旅游勝境。強輝總部設計部汲取河北邯鄲的美麗風光,將美學與設計相融,打造出令人向往的空間美學。

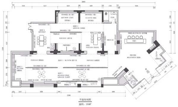
門店名稱:QHTC強輝精工瓷磚
展廳面積:350㎡
完成時間:2022年12月
設計團隊:強輝總部設計部
門店地點:河北省邯鄲市復興區聯紡西路163號
PART/ 01 大堂
強輝河北邯鄲旗艦店,在設計上以簡潔、通透的風格為主,一體化的空間設計,讓空間體驗感更強。

空間以大面積的白色為主色調,令空間更亮堂,燙金的強輝logo,簡潔高雅,搭配紋理豐富的巖板,深與淺的碰撞,營造輕奢質感。

轉折處選用大面積的白色巖板,連綿不斷的紋理,為空間注入了更多自然力量。
PART/ 02 選材區


產品以色系、類別、工藝區分開,清晰明了的擺設,讓客戶們可以靜靜地感受產品的質感。


木紋磚系列、中板系列、大板系列等區域整齊有序,沉浸式的體驗讓客戶有一種賓至如歸的舒適感。
PART/ 03 茶室

自古以來,國人好茶。茶室設計在中式韻味中滲透了幾許現代氣息,營造一種“空山不見人,但聞人語響”之感。

多元的場景樣板間,帶來全新的感官體驗。開放式的茶室與空間巧妙連接,讓空間整體保持著和諧的優雅感。
強輝河北邯鄲旗艦店
美感與功能并存的空間
帶給家居生活無限的想象















